info
images
work
Our Role: Teaching / Construction Advisory / Robotic Development / Fabrication (Wyatt Armstrong at Architectural Association)
Students: Miguel Cornejo, Yungang Chen, James Dent, Rafael Ferres, Maisie Hoile, Guixin Lin, Joaquin Iragorri, Snigdha Pinisetti, Yiting Sun, Yifan Wang, Yiling Zhou
Teaching Staff: Emmanuel Vercruysse, Kate Davies, Chris Sadd, Charlie Corrywright, Will Gowland, Wyatt Armstrong
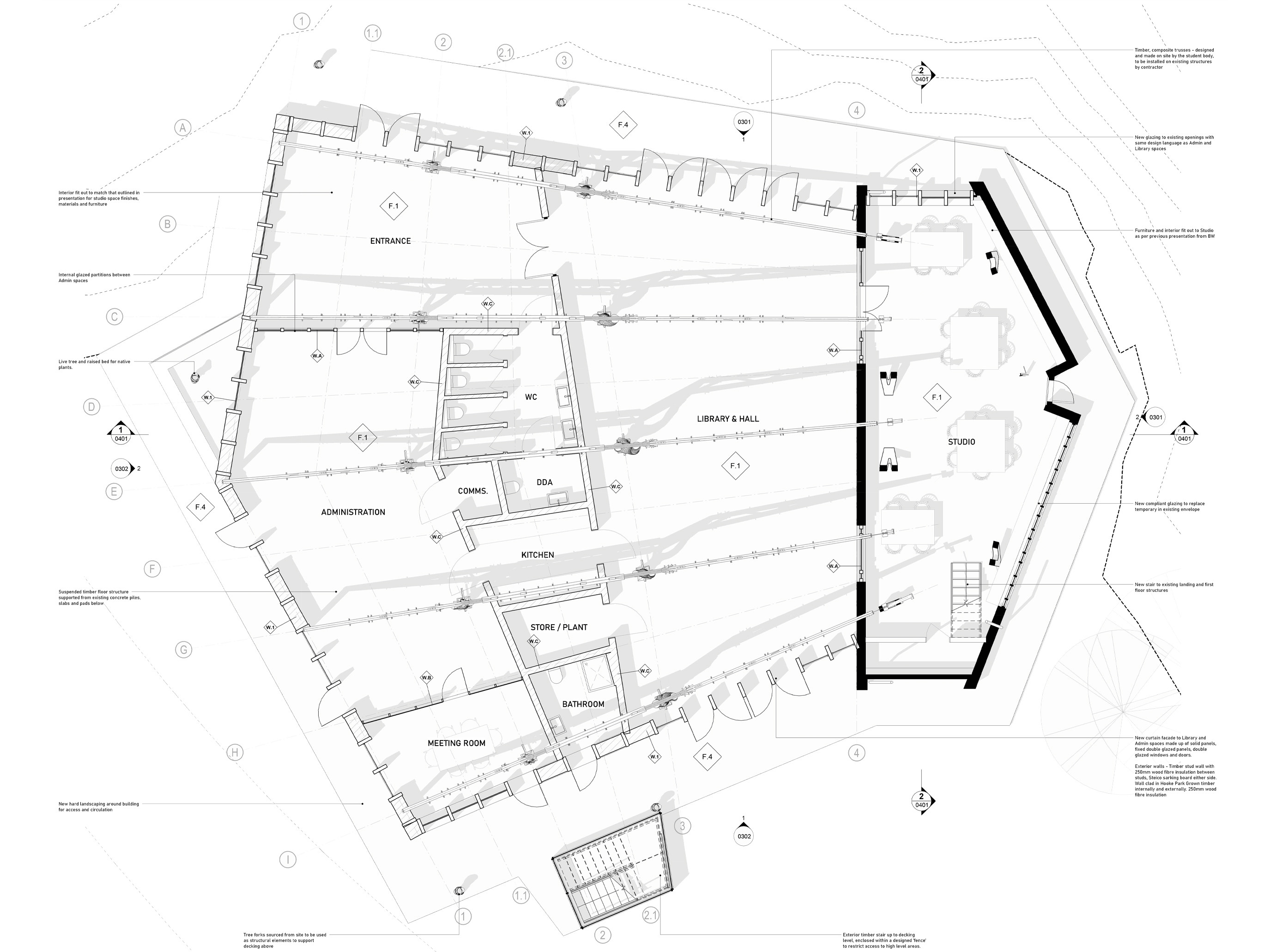
Wakeford Hall is a flagship building for the Architectural Association's Hooke Park campus. It will house a library, studios, a lecture hall and administrative spaces. This phase of the project was the load-bearing structure for a larger roof canopy, under which these programs are located. During the course of one academic year, we worked with students to design and fabricate a series of demountable large span trusses using only timber to timber connections. Drawings and images are courtesy of the Design + Make program.
No items found.
AW / 0015
Wakeford Hall
Architectural Association
Hooke Park
Architectural Association Design + Make
2024
Research
In-Progress
Work with Students
England
Built
view project >
AW / 0016
Van
2024
Design +
Architectural Association
Hooke Park
Architectural Association Design + Make
In-Progress
view project >
AW / 0015
Wakeford Hall
2024
Research
Robots In Architecture 2024
Toronto
Architectural Association / U of T Daniels
Built
view project >
AW / 0014
Branch Production
2024
Research
Science Museum
London
Unknown Works
Built
view project >
AW / 0013
Energy Revolution Gallery
2024
Fabrication
Architectural Association
London
First Year Media Studies
Built
view project >
AW / 0012
Blade Building
2023
Research
Royal Academy
London
Architectural Association Design + Make
Built
view project >
AW / 0011
The Tree and the Truss
2023
Research
Architectural Association
Hooke Park
Design + Make
Built
view project >
AW / 0010
Ornamental Roundwood
2023
Research
Private
Undiscolosed
Brook McIlroy
In-Progress
view project >
AW / 0009
Feature Wall
2023
Material Coordination
Architectural Association
Hooke Park
Design + Make
Built
view project >
AW / 0008
Field Station
2023
Research
Architectural Association Design + Make
Hooke Park
re.je
Built
view project >
AW / 0007
Robotic Vision System
2022
Research
CIBC
Toronto
Brook McIlroy
Built
view project >
AW / 0006
CIBC Legacy Space
2022
Material Coordination
Private
Muskoka
Built
view project >
AW / 0005
Moon Cabin
2022
Design +
Tendril
Toronto
Built
view project >
AW / 0004
Tendril Table
2022
Design +
Saugeen First Nation
Saugeen Bruce Peninsula
Brook McIlroy
In-Progress
view project >
AW / 0003
Saugeen Amphitheater and Gardens
2021
Design
Tendril
Toronto
Unbuilt
view project >
AW / 0002
Tendril Reception
2021
Design +
Architectural Association
Hooke Park
Design + Make
Built
view project >
AW / 0001
Woodland Cabin
2020
Research
Architectural Association
Hooke Park
Design + Make
Built
view project >
AW / 0000
Foundry
2018
Research